главная  |  архитектура  ландшафт  дизайн  |  инфо
 
 
   
 
 
МИЛЛЕНИУМ

2025
Благоустройство и озеленение частного участка
1458 м2
Московская область, г.о. Истра, коттеджный посёлок «Миллениум Парк»

 

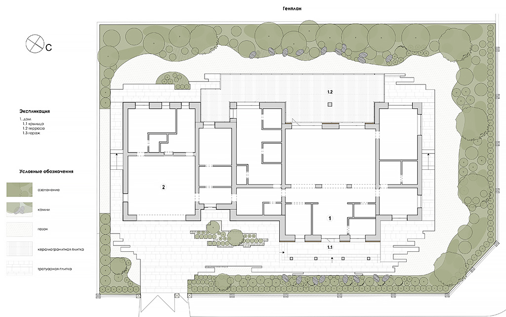
Архитектурный проект предусматривает комплексное благоустройство и озеленение территории.
Отмостка шириной 1,5 м с твердым покрытием служит не только для отвода воды от фундамента, но и для комфортного прогулочного маршрута вокруг дома.

Разреженный край тротуарной плитки по периметру дома создает живописную линию стыка мощения и озеленения.
В связи со стесненными условиями, вдоль главного фасада дома проектом предусмотрен откос с резким уклоном к границе участка. Здесь озеленение дополнено камнями. Живописно уложенные камни помогут скрыть и укрепить склон и сделают узкую линию озеленения более естественной.
С юго-западной стороны участка использованы сосны для прикрытия соседнего дома. Под соснами, напротив террасы, озеленение так же дополнено камнями. Камни поддерживают общую композицию с камнями вдоль крыльца и подчеркивают значение террасы.

 
 
 
 
 
 
 
 
 
 
 

 

 
 
 
 

главная  |  архитектура  ландшафт  дизайн  |  инфо

 

MINIDEA студия архитектуры и дизайна.
+7-916-145-7317 
minidea@mail.ru
telegram |
facebook  | 
вконтакте   instagram |

Москва, Россия.