главная  |  архитектура  ландшафт  дизайн  |  инфо
 
 
   
 
 
Гостевой дом ШАРГОРА
2024
Архитектурный проект
52,15 м2

Псковская область, Пушкиногорский район, деревня
Шаробыки, ул. Приозерная, д. 11, берег озера Шаробыкское

Сайт глэмпинга: https://shargora.ru/
 

Проект разработан с учётом общего стиля глэмпинга «Шаргора». Дом построен по каркасной технологии в стиле деревенский и современный минимализм.
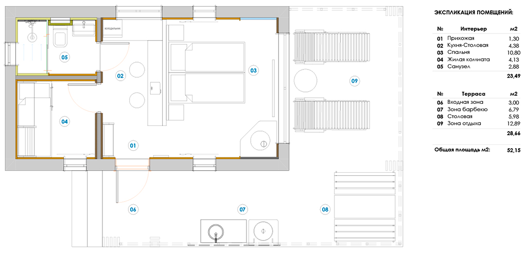
Общая площадь дома — 52,15 м², из них: жилая зона — 23,49 м², терраса — 28,66 м². Дом рассчитан на комфортное проживание трёх человек. Функциональные зоны внутри дома: прихожая (1,3 м²), кухня-столовая (4,38 м²), спальня (10,8 м²), жилая комната (4,13 м²), санузел (2,88 м²). Терраса поделена на входную зону (3 м²), зону барбекю (6,79 м²), столовую (5,98 м²) и зона отдыха (12,89 м²).

Конструкция отличается простотой и функциональностью. Основной материал фасада — натуральное дерево, придающее строению экологичный и уютный вид. Терраса с навесом поддерживается массивными деревянными балками, создающими ощущение прочности и надёжности. Общий облик дома гармонирует с природным окружением, подчёркивая его дачную и рекреационную функцию.
В отделке интерьера используется натуральное дерево с выраженной текстурой, создающее тёплую, природную атмосферу. Чёрные поверхности некоторых стен с отделкой «мазанка» зонируют пространство и подчёркивают простоту и естественность дизайна.
Разделение кухонной и спальной зоны выполнено с помощью невысокой деревянной перегородки, сохраняющей ощущение простора. Печь-камин в индустриальном стиле служит не только источником тепла, но и добавляет уюта всему интерьеру. В декоре интерьера использованы керамические изделия ручной работы, которые служат акцентом и вносят индивидуальность в пространство.
Большие панорамные окна обеспечивают обилие естественного света и визуально связывают интерьер с природой.

 
 
 
 
 
 
 
 
 
 
 
 
 
 

 
 
 
 
 
 
 
 
 
 
Проект выполнен для проектного бюро AES: www.archeco.space
 
 
 

главная  |  архитектура  ландшафт  дизайн  |  инфо

 

MINIDEA студия архитектуры и дизайна.
+7-916-145-7317 
minidea@mail.ru
telegram |
facebook  | 
вконтакте   instagram |

Москва, Россия.