главная  |  архитектура  ландшафт  дизайн  |  инфо
 
 
   
 
 
ДУБНЕНСКИЕ БАНИ
2025
Концептуальный проект реконструкции фасада банного комплекса
800 М2
Россия, г. Дубна, ул. Молодежная, 10
 

Результатом проекта реконструкции банного комплекса является обновление фасада, в котором удачно сочетаются элементы исторической архитектуры и современные решения. Ключевой акцент сделан на сохранении аутентичности за счёт использования отреставрированного кирпича бывшей постройки, который дополнен штукатуркой и деревянными элементами.
Фасад здания демонстрирует баланс между сохранёнными историческими деталями и новыми архитектурными решениями:
Отреставрированный кирпич придаёт фасаду характер и глубину, подчёркивая историческую ценность объекта. Кирпичная кладка сочетается с участками штукатурки, создавая текстурный контраст.
 Деревянные элементы (обшивка части фасада пристроек, опоры навесов, пергола на эксплуатируемой кровле) добавляют тепла и уюта, смягчая строгость кирпичной кладки.
Входная группа выделена колоннами-опорами с интегрированной дровницей, которые выполняют не только практическую функцию, поддержки навеса, но и декоративную, подчёркивая связь с традиционной банной культурой.

Реконструкция включает создание дополнительных пристроек, которые расширяют функционал комплекса:
Пристройки органично вписаны в общий архитектурный ансамбль, не нарушая стилистическую целостность.
Новые объёмы здания не перегружают композицию, а дополняют её, создавая плавные переходы между старой и новой частями.
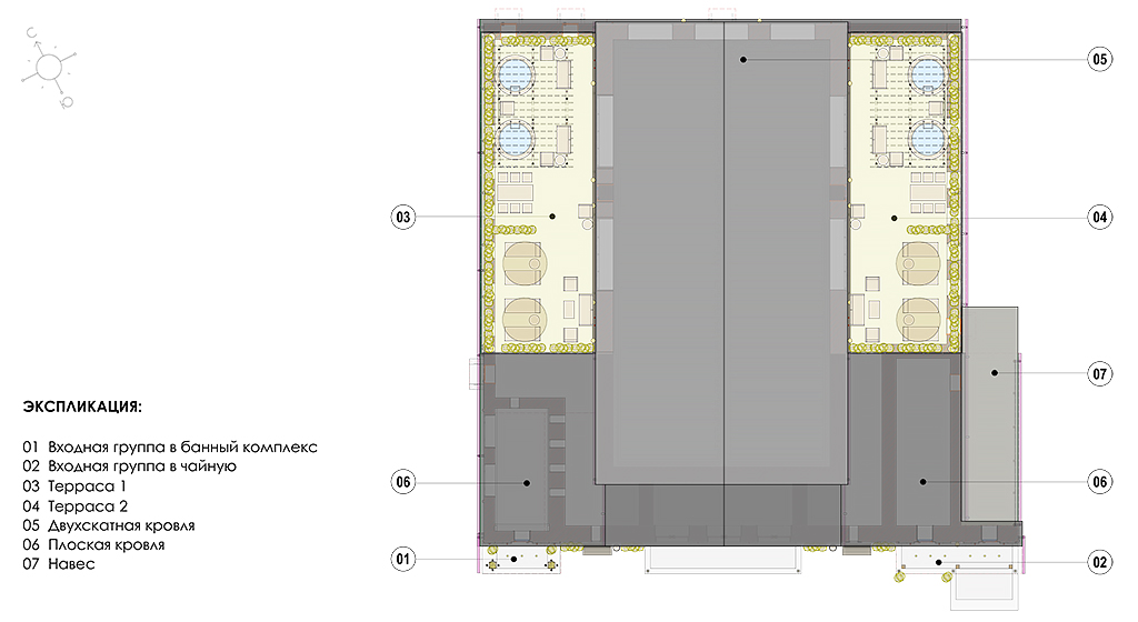
Возведение 2го этажа и эксплуатируемой кровли с зоной отдыха, включающее: купели, диваны и кресла, обеденную зону, шезлонги и озеленение.

Данный проект демонстрирует, как реконструкция может не только сохранить историческую ценность здания, но и наполнить его новой жизнью, адаптировав под современные потребности.

 
 
 
 

 
 
 
 
 
 
 
 
 
 
 

главная  |  архитектура  ландшафт  дизайн  |  инфо

 

MINIDEA студия архитектуры и дизайна.
+7-916-145-7317 
minidea@mail.ru
telegram |
facebook  | 
вконтакте   instagram |

Москва, Россия.